Conseil pour un particulier : rénovation / redistribution d’une maison ancienne sise à La Marche
Sollicité par un couple de particuliers souhaitant rénover leur maison ancienne, l’architecte conseiller du CAUE propose dans un premier temps un rendez-vous sur place.
La visite des lieux permet de faire tout d’abord un diagnostic de l’existant incontournable avant toute formulation de proposition.
Il apparait que la contrainte majeure relative au réaménagement intérieur de l’habitation est l’escalier très raide en vis à vis de la porte d’entrée à rez-de-chaussée, arrivant dans les combles de manière inconfortable sous le versant de couverture.
Le confort au niveau sanitaire est par ailleurs inexistant.
Cette première visite permet à l’architecte d’imaginer rapidement une redistribution :
La pièce de droite en entrant est plus haute de deux marches que l’entrée. Dans cet espace contre le mur de gauche en franchissant les marches, se trouvent une large cheminée suivie d’un placard.
L’idée, maintenir un escalier en position centrale pour une redistribution à l’étage avec un minimum de couloir. La porte existante à l’étage qui permet de communiquer avec les deux greniers est également prise en considération.
Un escalier quart tournant, accessible depuis le placard qu’il conviendra de percer, est alors imaginé.
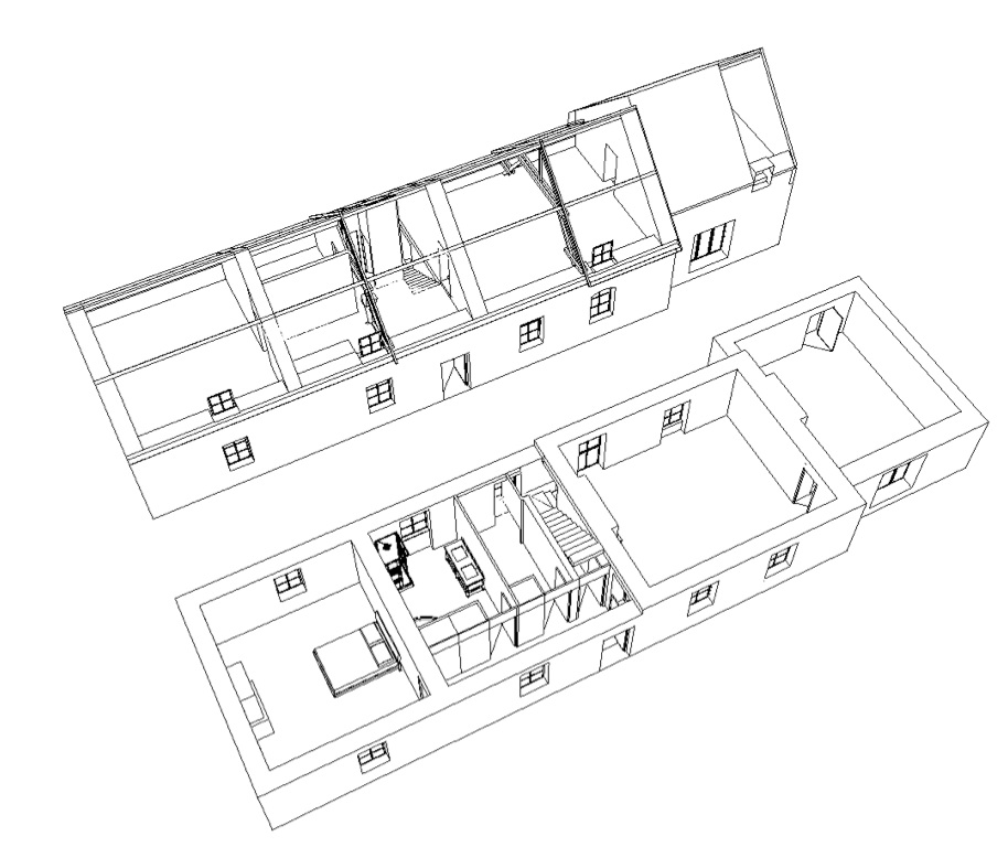
L’architecte conseiller réalise un relevé des lieux afin de travailler à partir de plans précis des deux niveaux, mis à l’échelle.
L’idée première évoquée sur place est confirmée, la solution fonctionne et permet de redistribuer confortablement l’étage.
Le rez-de-chaussée est repensé dans sa totalité :
Un large couloir / entrée dessert un WC avec lave-mains en sous-face d’escalier, une buanderie, une salle de bain, une grande chambre et en franchissant les deux marches à droite, une large cuisine / séjour et un salon.
L’escalier mène à un palier desservant WC, placard (ballon d’eau chaude, bloc climatisation), salle de bain, deux grandes chambres et un large bureau au dessus du salon.
Les premiers contacts avec les propriétaires se sont tenus en novembre 2013 et début d’année 2014.
Les conseils de l’architecte du CAUE, sous forme d’esquisses, ont été donnés dans la foulée et les travaux réalisés depuis, respectent les idées suggérées par le conseiller.
Les propriétaires ont récemment à nouveau fait appel au CAUE pour un projet d’implantation de piscine. Cette confiance, cette demande d’assistance renouvelée dans un souci de qualité architecturale témoigne de l’utilité des services gratuits de l’association.
Etat existant

Etat projeté et après travaux